EN

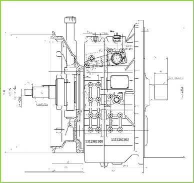
定轴式-2S1100同步器型两档变速器

产品简介:

适用于10米以上大中型新能源客车

•2个前进档

 

•前进档均采用同步器换挡;

 

 

 

主要技术参数

变速器型号

2S1100

额定输入扭矩

1100N.m

质量(不含附加装置及油)

160kg

润滑油等级

SAE80W/90 orAPI-GL-4

润滑油量

8L

安装方式

立式、左式、右卧

 

 

档位传动比

档位

一档

二挡

传动档1

2.8

1.2

传动档2

2.2

1.2

传动档3

2.2

1.0

传动档3

1.67

1.0

友情链接 ×